COFFEELAT

Локація: Київ, Україна
Функція: кавʼярня
Площа: 52 м²
Статус: реалізовано (2026)
Команда: Олег Волосовський, Ян Зганич
Фотограф: Віра Зінченко, Микита Цандер
Дізнатись ще більше

Про проєкт

Текст: Віра Зінченко. Новий Coffeelat — неспішна пауза на каву в ТЦ Ретровіль. Місце, де емоція важливіша за рух і покупки, де пауза на каву зупиняє і вирівнює ритм. Бренд розвиває кавову культуру в Україні з 2007 року. З 2013 року мережа закладів працює в Києві під торговою маркою Соffeеlat.

2025 звернулись до loft buro з метою освіжити дизайнерське рішення, зробити образ світлішим, емоційнішим, яскравим, для виклику позитивних емоцій, що потрібні  нашим гостям особливо зараз.

При розробці нового образу ми тримали баланс між естетикою і емоційністю, зручністю, відсутністю обмежень, функціональним контактом точки з торговельним центром і відвідувачами.

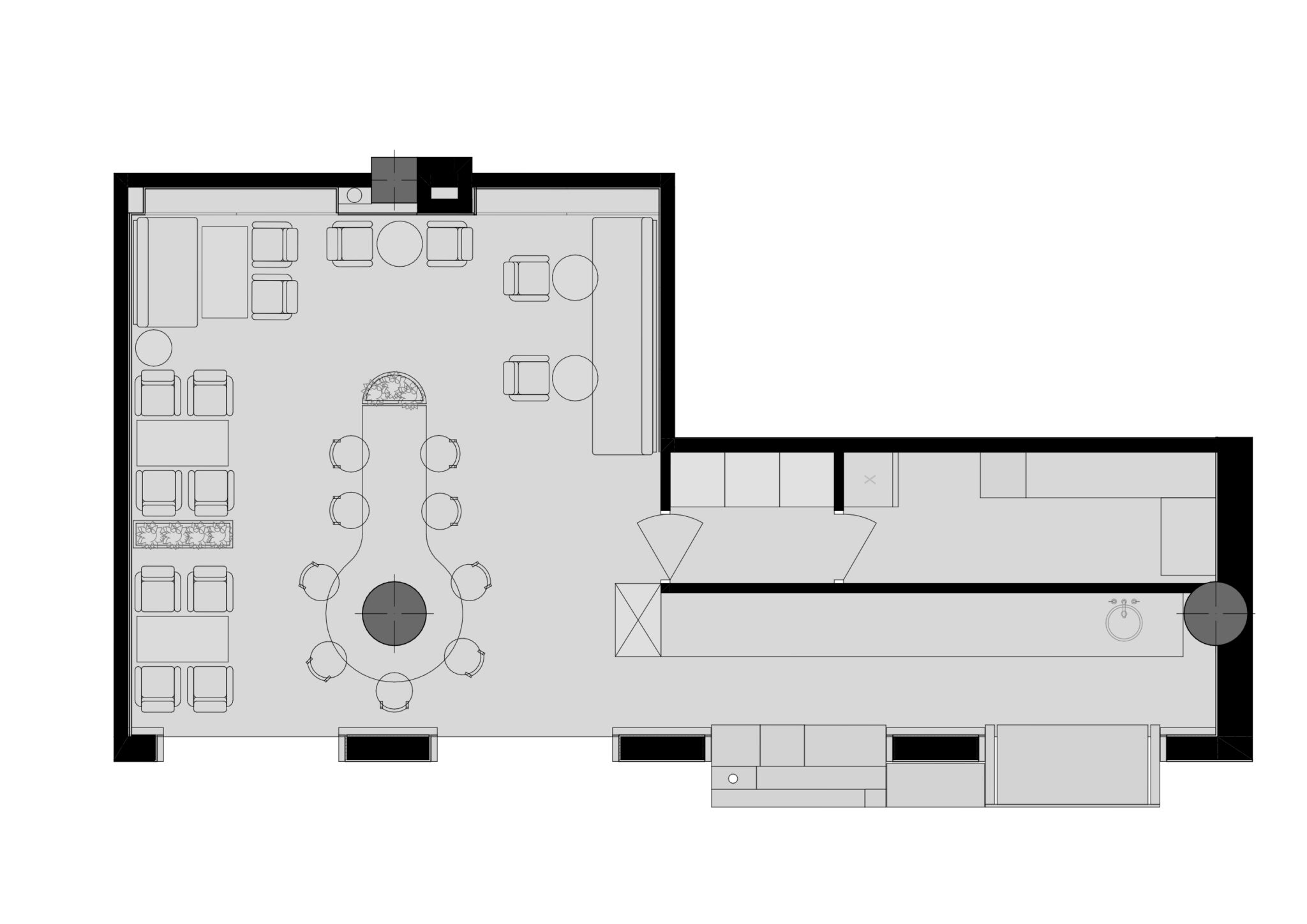
План

Екстерʼєр та інтерʼєр

Рестайлінг Сoffeelat фокусується на відвідувачах, швидкому споживанні і каві з собою, відступаючи і відкриваючи місце дизайну, продуманому до дрібних деталей, спілкуванню, насолодах естетичних і смакових. 

Архітектори loft buro дослідили місце розташування точки — у великому просторі ТЦ — у  широких міжбутікових галереях не було місця для відпочинку відвідувачів фізичного і візуального — велика кількість вивісок і зовнішньої реклами, яка кличе покупців поспішати і від якої хочеться затишно сховатися і перепочити. 

Дизайн впроваджували в двох зонах — інтер’єрній та екстер’єрній — спокійний відпочинок в інтер’єрі і легка пауза на острівній посадці  в галереї ззовні. Острівець не тільки приваблює увагу відвідувачів, а й став улюбленим  місцем відпочинку у ТЦ. 

Колір бренду оновили — свіжий зелений — колір натуральної, несмаженої кави, колір матча. Форма — мінімалістична,  вітрини — елегантні, акцент — на продукт, все функціонально, не агресивно, прозоро і відкрито. Пропрацювали деталі — дрібні декори у поєднанні з дзеркалами створили цікаву гру ефектів.

Невелика площа, яку займає Coffelat, розділена на господарську зону, робочу — вітрину зі стійкою видачі та зал на 30 посадкових місць.

Зал облаштували різними типами посадки — м’який кут з диванами для відпочинку, столи для зручного прийому їжі та висока острівна посадка — комунальна барна стійка для спілкування компанії. 

Посадку зробили різноманітною — м’який кут з диванами для відпочинку, столи для зручного прийому їжі та висока острівна посадка, влаштована навколо конструктивної колони, стала візуальним центром приміщення. Оновлений образ Coffеelat є емоційним  майбутнім бренду.

Facebook
Twitter
LinkedIn
Telegram
Pinterest

Залишіть свої контакти

Форма зворотнього зв’язку